







Agentia imobiliara Pomarin Home va ofera spre vanzare o parcela de teren intravilan situat in comuna Baciu, localitatea Corusu.
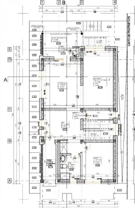
-Autorizatie de constructie
-suprafata teren: 547 mp
-D+P+M
-acces drum pietruit
-teren cu priveliste
-front la strada: 13,11 ml
-utilitati: apa- pe parcela, gaz 20 ml, curent
Pentru mai multe detalii sau dacă doresti sa programezi o vizionare suna cu incredere!
Comision -2% . Pentru mai multe poze sau informații puteți accesa site-ul nostru P: .pomarin.ro
ID intern: 45351