


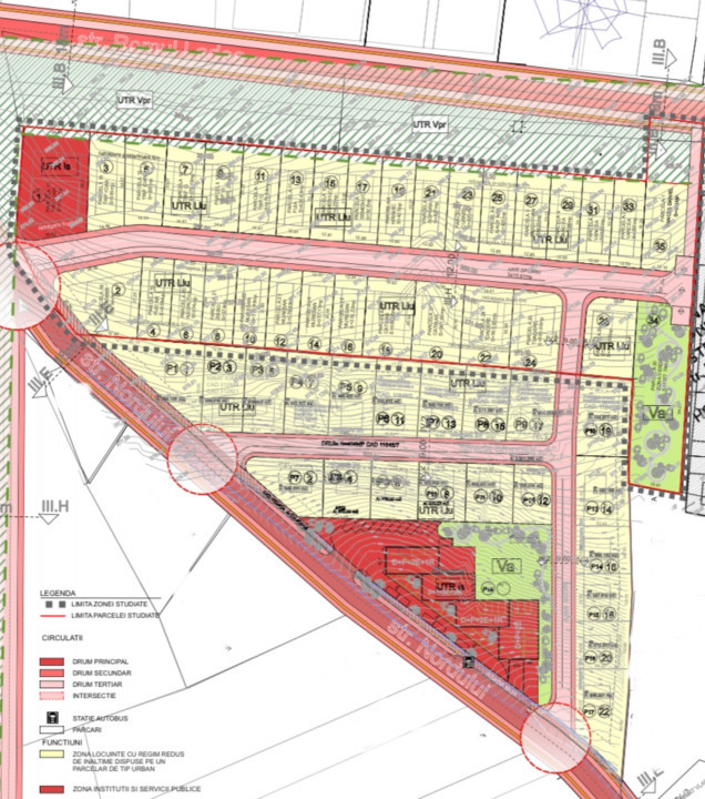
Va propunem spre vanzare un teren la început de Borhanci cu PUZ si HCL aprobat.
Terenul este in apropiere de str Romul Ladea.
Suprafata terenului este de 425 mp + cota parte spatiu verde + cota parte drum, făcând parte dintr-o comunitare de 30 parcele.
P.O.T max = 35%
C.U.T max = 0,9.
Regimul de inaltime este D+P+1+R/M Regim de înălțime 12 M.
Se poate construi o casa intividuala, cu o suprafata construita de maxim 382 mp si o amprenta la sol de maxim 148 mp.
Pentru mai multe detalii sau a stabili o vizionare sunati cu incredere!